Bài viết
So Sánh Tủ PCCC Âm Tường Với Tủ Nổi – Nên Chọn Loại Nào?
Tủ PCCC âm tường là thiết bị bắt buộc trong mọi công trình xây dựng, từ dân dụng đến công nghiệp. Tuy nhiên, việc lựa chọn tủ âm tường hay tủ nổi lại phụ thuộc vào nhiều yếu tố: không gian, tính thẩm mỹ, khả năng bảo trì, điều kiện môi trường và yêu cầu nghiệm thu. Bài viết dưới đây của Thành An sẽ giúp bạn hiểu rõ sự khác biệt giữa hai loại tủ PCCC, nêu chi tiết cấu tạo, ưu – nhược điểm và đưa ra gợi ý lựa chọn phù hợp nhất cho từng loại công trình.
Tủ PCCC âm tường và tủ PCCC nổi là gì?
Tủ PCCC âm tường là loại tủ được thiết kế lắp chìm vào tường. Khi hoàn thiện, chỉ phần cửa tủ lộ ra bên ngoài, giúp tiết kiệm không gian và mang lại tính thẩm mỹ cao cho công trình. Loại tủ này thường được sử dụng trong các tòa nhà cao tầng, trung tâm thương mại hoặc khách sạn, nơi yêu cầu cao về kiến trúc và mỹ quan.
Tủ PCCC nổi (hay tủ gắn nổi) được lắp đặt trực tiếp trên bề mặt tường mà không cần khoét hốc chờ. Dạng tủ này dễ lắp đặt, thay thế, kiểm tra và thường được lựa chọn cho nhà xưởng, tầng hầm hoặc các công trình đã hoàn thiện.
Cấu tạo cơ bản và vật liệu

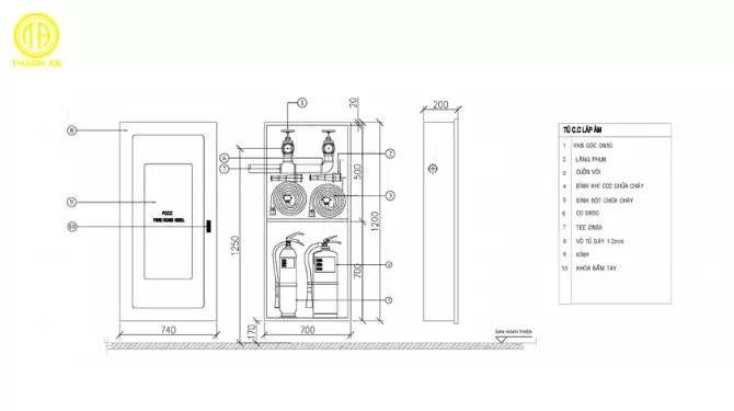
Cấu tạo chung tủ pccc âm tường
Cả tủ PCCC âm tường và tủ nổi đều được chế tạo từ thép sơn tĩnh điện có độ dày 0.8–1.5 mm, đảm bảo độ bền và khả năng chống gỉ sét. Bên trong tủ được bố trí các ngăn chứa bình chữa cháy, cuộn vòi, lăng phun, van góc, khóa an toàn và có thể có kính quan sát ở mặt trước.
Tất cả các chi tiết đều tuân thủ tiêu chuẩn PCCC, giúp người sử dụng dễ thao tác trong tình huống khẩn cấp.
Sự khác biệt về kết cấu
-
Tủ âm tường: Cần thi công chờ hốc tường, lắp đặt khung cố định, đảm bảo khít và phẳng so với mặt tường. Thường được sử dụng cho khu vực trong nhà để đạt tính thẩm mỹ cao.
-
Tủ nổi: Có kết cấu vỏ kín hơn, dễ lắp đặt ngoài trời. Một số mẫu tủ nổi được thiết kế có mái che, gioăng chống nước, đảm bảo hoạt động ổn định ngay cả trong điều kiện mưa nắng hoặc môi trường công nghiệp.
Ưu điểm & nhược điểm — Đánh giá theo 6 tiêu chí
Thẩm mỹ & tối ưu không gian
-
Tủ âm tường: Nổi bật ở tính thẩm mỹ, bề mặt tường phẳng, gọn gàng, phù hợp cho công trình cao cấp như trung tâm thương mại, văn phòng, khách sạn.
-
Tủ nổi: Kém thẩm mỹ hơn nhưng bù lại dễ nhận biết và thao tác nhanh, phù hợp cho khu vực kỹ thuật hoặc công nghiệp.
Lắp đặt & thời gian thi công
-
Tủ âm tường: Cần lên kế hoạch từ giai đoạn xây dựng để chờ hốc tường. Việc thi công phức tạp hơn nên chỉ phù hợp khi công trình đang trong giai đoạn hoàn thiện phần thô.
-
Tủ nổi: Thi công đơn giản, chỉ cần cố định bằng bulông hoặc giá đỡ. Đây là lựa chọn tối ưu cho công trình đã hoàn thiện hoặc cải tạo.
Khả năng bảo trì & kiểm tra
-
Tủ âm tường: Khó kiểm tra hoặc thay thế linh kiện hơn do bị giới hạn không gian thao tác. Tuy nhiên, nếu thiết kế đúng kỹ thuật, vẫn đảm bảo thuận tiện cho việc mở cánh và lấy thiết bị khi cần.
-
Tủ nổi: Dễ mở, dễ kiểm tra và thay thế thiết bị. Thường được sử dụng ở khu vực cần kiểm tra định kỳ thường xuyên.
Bảo vệ thiết bị & chống thời tiết
-
Tủ âm tường: Bảo vệ thiết bị tốt khi đặt trong nhà, tránh va đập hoặc tác động từ bên ngoài. Tuy nhiên, nếu đặt ngoài trời cần xử lý kỹ chống nước, chống ẩm để đảm bảo độ bền.
-
Tủ nổi: Có thể trang bị vỏ dày, lớp sơn chống tia UV, gioăng cao su kín nước giúp hoạt động bền bỉ trong môi trường khắc nghiệt.
Chi phí đầu tư
-
Tủ âm tường: Chi phí thi công cao hơn do phải khoét tường, hoàn thiện bề mặt. Dù vậy, loại này giúp tiết kiệm không gian và tăng giá trị thẩm mỹ tổng thể cho công trình.
-
Tủ nổi: Chi phí thấp hơn, lắp đặt nhanh, tiết kiệm nhân công và thời gian.
Tiêu chuẩn PCCC & vị trí lắp đặt
Cả hai loại đều cần đáp ứng quy định về kích thước, trang bị thiết bị, biển báo và khoảng cách lắp đặt.
Việc lựa chọn loại tủ phụ thuộc chủ yếu vào vị trí đặt (hành lang, tầng hầm, ngoài trời) và mục đích sử dụng của từng khu vực trong hệ thống PCCC tổng thể.
Xem thêm: Tủ PCCC Thành An
Khi nào nên chọn tủ âm tường – Khuyến nghị

Bạn nên lựa chọn tủ PCCC âm tường trong các trường hợp:
-
Dự án có yêu cầu cao về thẩm mỹ và không gian, như khách sạn, văn phòng, trung tâm thương mại.
-
Khu vực lắp đặt có hành lang hẹp, cần tiết kiệm diện tích.
-
Công trình đang trong giai đoạn thi công mới, có thể chờ hốc tường và lắp đặt sẵn khung.
Lưu ý kỹ thuật: Với khu vực ẩm thấp hoặc lắp đặt ngoài trời, cần xử lý kín khít, chống nước, thông gió hợp lý để tránh ẩm mốc và đảm bảo độ bền cho thiết bị bên trong.
Khi nào nên chọn tủ nổi – Khuyến nghị

Tủ PCCC nổi là lựa chọn lý tưởng khi:
-
Công trình đã hoàn thiện, không thể đục tường hoặc cần lắp đặt bổ sung.
-
Khu vực yêu cầu kiểm tra, thao tác thường xuyên như nhà xưởng, bãi xe, hành lang kỹ thuật.
-
Nơi lắp đặt ngoài trời hoặc khu vực dễ bị va chạm cơ học, cần tủ có kết cấu vững, vỏ dày và có mái che bảo vệ.
Tiêu chí chọn mua & lắp đặt – Checklist nhanh
-
Vị trí lắp đặt: Xác định trong nhà, ngoài trời hay tầng hầm.
-
Yêu cầu thẩm mỹ: Dự án cao cấp nên ưu tiên tủ âm tường, công nghiệp chọn tủ nổi.
-
Tiêu chuẩn PCCC: Đảm bảo đủ cuộn vòi, lăng phun, van góc và bình chữa cháy.
-
Khả năng bảo trì: Chọn tủ có cửa mở linh hoạt, phụ kiện dễ thay thế.
-
Khả năng chống ẩm – chống nước: Cần sơn tĩnh điện, gioăng kín nếu đặt ngoài trời.
-
Kích thước & biển báo: Tuân thủ quy định về khoảng cách, ký hiệu và chiều cao lắp đặt.
Ví dụ ứng dụng thực tế
-
Khách sạn, trung tâm thương mại: Chọn tủ âm tường tại hành lang để đảm bảo thẩm mỹ, giữ không gian thông thoáng.
-
Nhà xưởng, bãi xe, kho hàng: Chọn tủ nổi lắp ngoài tường, có mái che và khóa bảo vệ, thuận tiện thao tác.
-
Công trình cải tạo: Có thể chọn tủ nổi hoặc tủ âm tường tiền chế nếu muốn đồng bộ với bề mặt tường hiện có.
Kết luận – Nên chọn loại tủ nào?
Không có loại tủ nào “tốt nhất” cho mọi công trình – mỗi loại có ưu điểm riêng.
-
Tủ PCCC âm tường nổi bật ở tính thẩm mỹ, tiết kiệm không gian và phù hợp với công trình cao cấp.
-
Tủ PCCC nổi lại dễ lắp đặt, dễ bảo trì, thích hợp cho khu vực kỹ thuật, ngoài trời hoặc công trình cải tạo.
Khi lựa chọn, chủ đầu tư và đơn vị thi công cần xem xét đồng thời vị trí lắp, mục tiêu thẩm mỹ, ngân sách và tiêu chuẩn PCCC để đưa ra quyết định tối ưu nhất.
Thông tin liên hệ với chúng tôi:









